Заказать обратный звонок
Главный офис
г. Москва, ул. Кузнецкий мост, д. 19, стр. 1, офис 35
Бесплатно по России
+7 (495) 933-83-14
Главная
Проекты
КД 129

КД 129

Площадь по осям
Площадь по осям
Каркасный или Клеёный брус
129 м²
Комната
1
Санузел
1
Терраса
1
Базовые планировки
Базовые фасады
129 м²
Площадь по осям
129 м²
Площадь по осям
Хотите изменить планировку?
Это совсем просто! Назначьте встречу с одним из наших архитекторов и на основании ваших идей он создаст индивидуальные планировки.
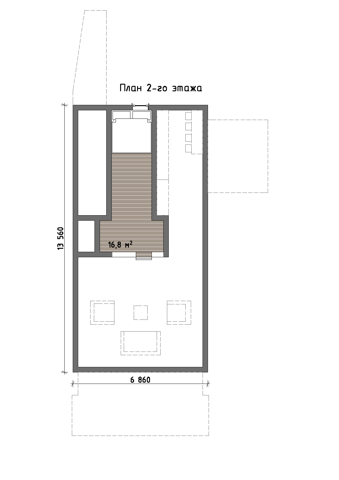
Второй уровень решён как приватная зона. Он включает спальню и дополнительное пространство, которое может использоваться как лаунж-зона или место для уединённого отдыха. Благодаря открытой геометрии и визуальной связи с первым этажом создаётся ощущение единого архитектурного объёма.

Дом подойдёт тем, кто ценит современную эстетику, ощущение простора и контакт с природой. Это решение для загородной жизни, где важны тишина, свет и архитектурная выразительность без избыточности.
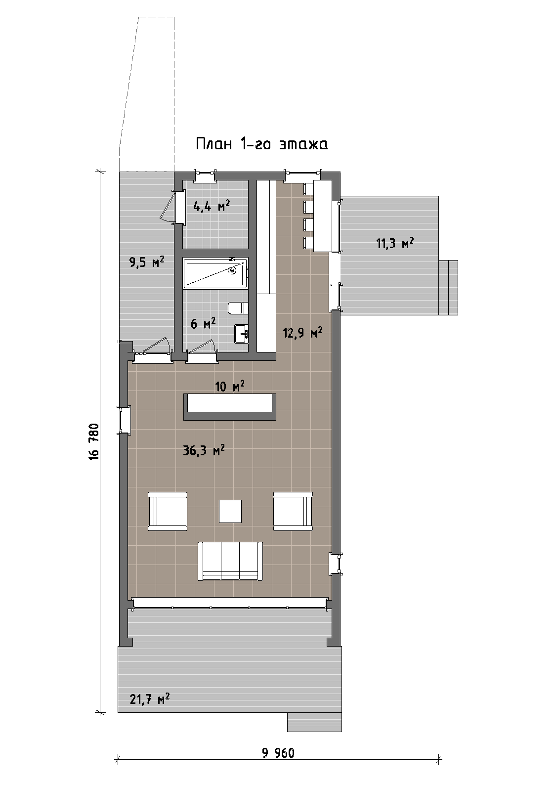
Этот дом - выразительный пример современной архитектуры, где лаконичная форма сочетается с эмоциональной выразительностью пространства. Высокая двускатная кровля формирует узнаваемый силуэт, а панорамное остекление во всю высоту фасада наполняет интерьер светом и открывает визуальную связь с природным окружением.

В основе планировки - просторная общественная зона первого этажа с объединённой кухней, столовой и гостиной. Высокие потолки усиливают ощущение объёма, а выход на террасу превращает внутреннее пространство в продолжение участка, создавая комфортную среду для отдыха и приёма гостей. Здесь же предусмотрены функциональные помещения - санузел, техническая зона и вспомогательные пространства, обеспечивающие удобство повседневной жизни.
О проекте

Что входит в стоимость

Каркас
Клееный брус

Фундамент

  • Проектная документация
  • Геодезические работы: разбивка осей, нивелировка
  • Забивные ж/б сваи 200х200х3000 мм, оголовки с гидроизоляцией
  • Обвязка свай: двойной брус, сибирская лиственница 100х200 мм
  • Приемка работ инженером технического надзора
  • Проектная документация
  • Геодезические работы: разбивка осей, нивелировка
  • Забивные ж/б сваи 200х200х3000 мм, оголовки с гидроизоляцией
  • Обвязка свай: двойной брус, сибирская лиственница 100х200 мм
  • Приемка работ инженером технического надзора

Стеновой копмлект

  • Рабочий проект КД (конструкции деревянные)
  • Наружные стены, толщина 267 мм: доска сухая строганная 40х145 мм, брусок сухой строганный 45х45 мм, фанера 12 мм, пароизоляция и ветро-влагозащита Технониколь, лента соединительная, утеплитель 50 мм Технониколь
  • Доска фасадная сухая строганная 20х140 мм
  • Внутренние стены, толщина 157 мм: доска сухая строганная 40х145 мм, фанера 12 мм
  • Балки перекрытия – доска сухая строганная
  • Комплектующие и крепеж
  • Леса строительные, лестница межэтажная черновая
  • Доставка стенового комплекта МО до 100 км от МКАД
  • Сборка стенового комплекта
  • Приемка работ инженером технического надзора
  • Рабочий проект КД (конструкции деревянные)
  • Брус клееный 200х185 мм, европейский профиль
  • Столбы – клееный брус, балки перекрытия – доска сухая строганная 45х195 мм
  • Комплектующие и крепеж
  • Леса строительные, лестница межэтажная черновая
  • Доставка стенового комплекта МО до 100 км от МКАД
  • Сборка стенового комплекта
  • Приемка работ инженером технического надзора

Кровля

  • Рабочий проект кровли
  • Стропильная группа – доска сухая строганная 45х195 мм
  • Утепление Rockwool 200 мм
  • Гидроветрозащита Delta
  • Пароизоляционная пленка Delta
  • Комплектующие и крепеж
  • Фальцевая кровля Grand Line
  • Водосточная система Aquasystem
  • Система снегозадержания
  • Свесы кровли – планкен сорт АВ
  • Доставка
  • Монтажные работы
  • Приемка работ инженером технического надзора
  • Рабочий проект кровли
  • Стропильная группа – доска сухая строганная 45х195 мм
  • Утепление Rockwool 200 мм
  • Гидроветрозащита Delta
  • Пароизоляционная пленка Delta
  • Комплектующие и крепеж
  • Фальцевая кровля Grand Line
  • Водосточная система Aquasystem
  • Система снегозадержания
  • Свесы кровли – планкен сорт АВ
  • Доставка
  • Монтажные работы
  • Приемка работ инженером технического надзора

Окна и двери

  • Рабочий проект кровли
  • Стропильная группа – доска сухая строганная 45х195 мм
  • Утепление Rockwool 200 мм
  • Гидроветрозащита Delta
  • Пароизоляционная пленка Delta
  • Комплектующие и крепеж
  • Фальцевая кровля Grand Line
  • Водосточная система Aquasystem
  • Система снегозадержания
  • Свесы кровли – планкен сорт АВ
  • Доставка
  • Монтажные работы
  • Приемка работ инженером технического надзора
  • Обсадная конструкция
  • Профиль Deceuninck Bautec Neo
  • Стеклопакет 40мм(4MF-16-4-12-4(4И))
  • Фурнитура
  • Дверь входная металлическая утепленная
  • Внешние наличники
  • Доставка
  • Монтажные работы
  • Приемка работ инженером технического надзора

Сопровождение строительства

  • Организация проживания рабочих (бытовка), оснащение объекта первичными средствами
  • Подключение бытовки к электричеству
  • Аренда и обслуживание биотуалета
  • Вывоз мусора

Что ещё входит в стоимость

50 лет
гарантии

Персональный
менеджер

Независимый
технадзор

Подробности комплектации

Что не входит в стоимость

Дренаж и отмостка
Внешние монолитные лестницы
Межкомнатные перегородки
Утепление и шумоизоляция перекрытий
Фасадная отделка
Покраска деревянных элементов
Мансардные окна
Инженерные коммуникации

Примеры отделки

Понравился этот проект?
Закажите его презентацию и мы ответим на все интересующие вас вопросы