Проекты
Галлерея
+7 (495) 933 83 14
Компания
Проекты
Галлерея
Более 300 кв.м
До 300 кв.м
До 150 кв.м
Все проекты
Проекты
Главный офис
Бесплатно по России
г. Москва, ул. Кузнецкий мост, д. 19, стр. 1, офис 35
+7 (495) 933-83-14
Заказать обратный звонок
Проекты
Главный офис
г. Москва, Просвирин переулок, дом 13
Бесплатно по России
8 (800) 700-38-26
Главная
Проекты
КД 144

КД 144

Площадь по осям
Площадь по осям
Каркасный или Клеёный брус
144 м²
Комнаты
2
Санузла
2
Терраса
1
Обсудить строительство дома
7,99
МЛН ₽
АКЦИЯ
Фиксируем стоимость
дома только до 20.12.2025
Базовые планировки
Базовые фасады
144 м²
Площадь по осям
144 м²
Площадь по осям
Хотите изменить планировку?
Это совсем просто! Назначьте встречу с одним из наших архитекторов и на основании ваших идей он создаст индивидуальные планировки.
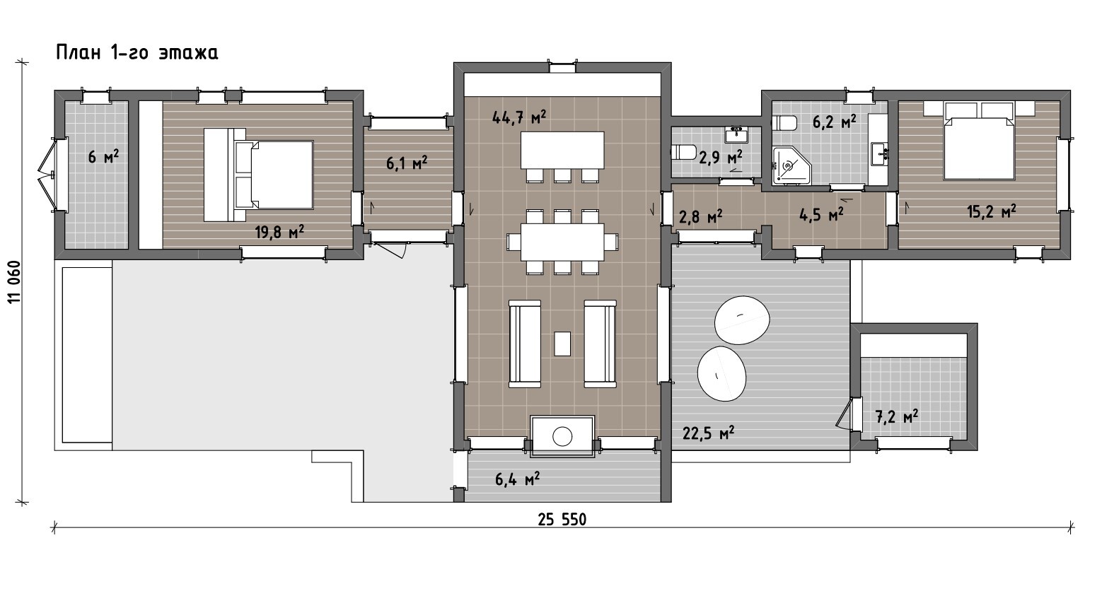
Жилые комнаты расположены таким образом, чтобы обеспечить каждому члену семьи личное пространство. Спальни отделены от общей зоны, что создаёт ощущение уединения и комфорта. Планировка подойдёт как для постоянного проживания, так и для длительных загородных выходных: в доме достаточно места и для повседневной жизни, и для приёма гостей.

Дополняют картину продуманные хозяйственные помещения и удобные входные зоны, которые делают быт максимально практичным. В результате получился дом с современным характером и тёплой атмосферой, идеально подходящий для жизни на природе без отказа от привычного городского комфорта.
Этот проект создавался как современный загородный дом, в котором архитектура и планировка работают на ощущение простора и спокойной, размеренной жизни. Внешний облик строится на сочетании лаконичных форм, двускатных кровель и натуральной отделки: тёплое дерево фасадов гармонирует с тёмными акцентами, подчёркивая графику объёмов и делая дом выразительным, но при этом уютным.

Внутреннее пространство организовано вокруг светлой и просторной кухни-гостиной со вторым светом. Высокие потолки и большие окна в пол наполняют дом естественным светом в течение всего дня, а прямая связь с террасой позволяет легко объединять интерьер и улицу. Это место задумывалось как сердце дома - здесь удобно собираться всей семьёй, проводить вечера с друзьями или просто наслаждаться тишиной и видом на участок.
О проекте

Что входит в стоимость

Каркас
Клееный брус

Фундамент

  • Проектная документация
  • Геодезические работы: разбивка осей, нивелировка
  • Забивные ж/б сваи 200х200х3000 мм, оголовки с гидроизоляцией
  • Обвязка свай: двойной брус, сибирская лиственница 100х200 мм
  • Приемка работ инженером технического надзора
  • Проектная документация
  • Геодезические работы: разбивка осей, нивелировка
  • Забивные ж/б сваи 200х200х3000 мм, оголовки с гидроизоляцией
  • Обвязка свай: двойной брус, сибирская лиственница 100х200 мм
  • Приемка работ инженером технического надзора

Стеновой копмлект

  • Рабочий проект КД (конструкции деревянные)
  • Наружные стены, толщина 267 мм: доска сухая строганная 40х145 мм, брусок сухой строганный 45х45 мм, фанера 12 мм, пароизоляция и ветро-влагозащита Технониколь, лента соединительная, утеплитель 50 мм Технониколь
  • Доска фасадная сухая строганная 20х140 мм
  • Внутренние стены, толщина 157 мм: доска сухая строганная 40х145 мм, фанера 12 мм
  • Балки перекрытия – доска сухая строганная
  • Комплектующие и крепеж
  • Леса строительные, лестница межэтажная черновая
  • Доставка стенового комплекта МО до 100 км от МКАД
  • Сборка стенового комплекта
  • Приемка работ инженером технического надзора
  • Рабочий проект КД (конструкции деревянные)
  • Брус клееный 200х185 мм, европейский профиль
  • Столбы – клееный брус, балки перекрытия – доска сухая строганная 45х195 мм
  • Комплектующие и крепеж
  • Леса строительные, лестница межэтажная черновая
  • Доставка стенового комплекта МО до 100 км от МКАД
  • Сборка стенового комплекта
  • Приемка работ инженером технического надзора

Кровля

  • Рабочий проект кровли
  • Стропильная группа – доска сухая строганная 45х195 мм
  • Утепление Rockwool 200 мм
  • Гидроветрозащита Delta
  • Пароизоляционная пленка Delta
  • Комплектующие и крепеж
  • Фальцевая кровля Grand Line
  • Водосточная система Aquasystem
  • Система снегозадержания
  • Свесы кровли – планкен сорт АВ
  • Доставка
  • Монтажные работы
  • Приемка работ инженером технического надзора
  • Рабочий проект кровли
  • Стропильная группа – доска сухая строганная 45х195 мм
  • Утепление Rockwool 200 мм
  • Гидроветрозащита Delta
  • Пароизоляционная пленка Delta
  • Комплектующие и крепеж
  • Фальцевая кровля Grand Line
  • Водосточная система Aquasystem
  • Система снегозадержания
  • Свесы кровли – планкен сорт АВ
  • Доставка
  • Монтажные работы
  • Приемка работ инженером технического надзора

Окна и двери

  • Рабочий проект кровли
  • Стропильная группа – доска сухая строганная 45х195 мм
  • Утепление Rockwool 200 мм
  • Гидроветрозащита Delta
  • Пароизоляционная пленка Delta
  • Комплектующие и крепеж
  • Фальцевая кровля Grand Line
  • Водосточная система Aquasystem
  • Система снегозадержания
  • Свесы кровли – планкен сорт АВ
  • Доставка
  • Монтажные работы
  • Приемка работ инженером технического надзора
  • Обсадная конструкция
  • Профиль Deceuninck Bautec Neo
  • Стеклопакет 40мм(4MF-16-4-12-4(4И))
  • Фурнитура
  • Дверь входная металлическая утепленная
  • Внешние наличники
  • Доставка
  • Монтажные работы
  • Приемка работ инженером технического надзора

Сопровождение строительства

  • Организация проживания рабочих (бытовка), оснащение объекта первичными средствами
  • Подключение бытовки к электричеству
  • Аренда и обслуживание биотуалета
  • Вывоз мусора

Что ещё входит в стоимость

50 лет
гарантии

Персональный
менеджер

Независимый
технадзор

Подробности комплектации

Что не входит в стоимость

Дренаж и отмостка
Внешние монолитные лестницы
Межкомнатные перегородки
Утепление и шумоизоляция перекрытий
Фасадная отделка
Покраска деревянных элементов
Мансардные окна
Инженерные коммуникации

Примеры отделки

Понравился этот проект?
Закажите его презентацию и мы ответим на все интересующие вас вопросы
Made on
Tilda