Проекты
Галлерея
+7 (495) 933 83 14
Компания
Проекты
Галлерея
Более 300 кв.м
До 300 кв.м
До 150 кв.м
Все проекты
Проекты
Главный офис
Бесплатно по России
г. Москва, ул. Кузнецкий мост, д. 19, стр. 1, офис 35
+7 (495) 933-83-14
Заказать обратный звонок
Проекты
Главный офис
г. Москва, Просвирин переулок, дом 13
Бесплатно по России
8 (800) 700-38-26
Главная
Проекты
КД 208

КД 202

Площадь по осям
Площадь по осям
Каркасный или Клеёный брус
208 м²
Комнаты
4
Санузла
3
Терраса
1
Обсудить строительство дома
7,99
МЛН ₽
АКЦИЯ
Фиксируем стоимость
дома только до 20.12.2025
Базовые планировки
Базовые фасады
208 м²
Площадь по осям
208 м²
Площадь по осям
Хотите изменить планировку?
Это совсем просто! Назначьте встречу с одним из наших архитекторов и на основании ваших идей он создаст индивидуальные планировки.
Приватная часть грамотно разделена на несколько спален, удалённых от активной зоны. Главная спальня дополнена собственным санузлом, а остальные комнаты имеют удобный доступ к общим ванным. Продуманная система коридоров и холлов исключает проходные помещения и обеспечивает уединение каждому члену семьи.

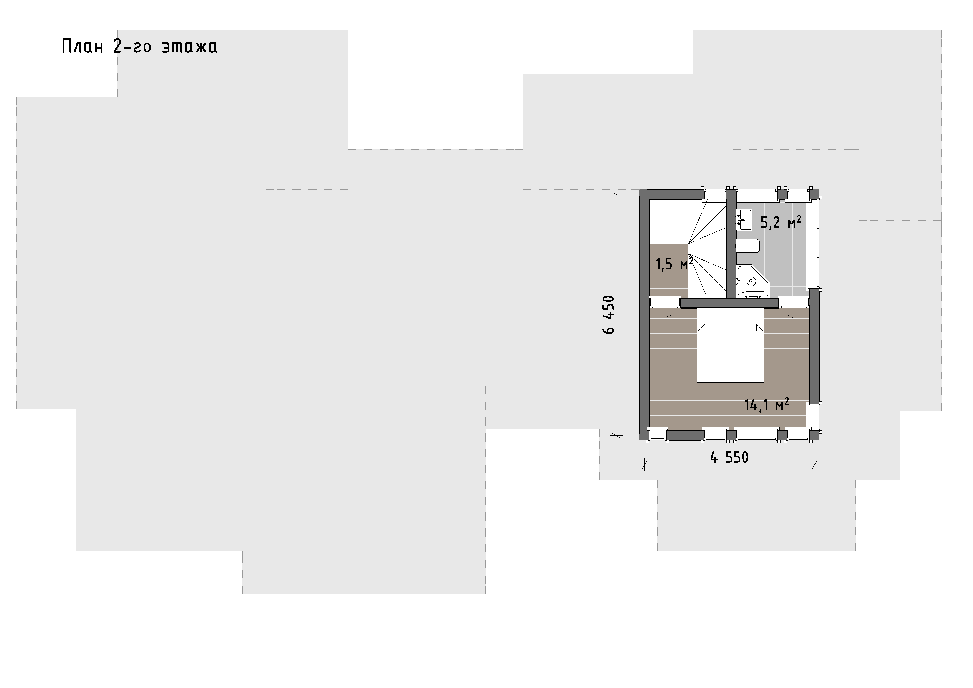
Второй уровень организован как компактная автономная зона - здесь размещена дополнительная спальня с санузлом. Такое решение отлично подходит для гостей, подростка или кабинета, где можно работать в тишине. В итоге дом сочетает простор общественных пространств с комфортной приватностью, создавая сбалансированную и функциональную архитектуру для круглогодичного проживания.
Этот дом построен на выразительном сочетании горизонталей и объемов разной высоты, что формирует динамичный, современный силуэт. Многоуровневая кровля, широкие свесы и контраст фактур - светлого дерева, темных вставок и каменного цоколя - создают архитектуру с характером. Панорамное остекление раскрывает фасады, наполняя внутренние пространства светом и визуально связывая дом с природным ландшафтом.

Планировка первого этажа выстроена вокруг просторной общественной зоны площадью более 47 м², объединяющей гостиную и столовую. Большие окна по периметру делают это пространство центральной точкой дома — здесь удобно принимать гостей, проводить семейные вечера и наслаждаться видом на участок. Рядом расположена кухня с удобной логистикой, а также выходы на террасу, что делает дом особенно комфортным в теплое время года.
О проекте

Что входит в стоимость

Каркас
Клееный брус

Фундамент

  • Проектная документация
  • Геодезические работы: разбивка осей, нивелировка
  • Забивные ж/б сваи 200х200х3000 мм, оголовки с гидроизоляцией
  • Обвязка свай: двойной брус, сибирская лиственница 100х200 мм
  • Приемка работ инженером технического надзора
  • Проектная документация
  • Геодезические работы: разбивка осей, нивелировка
  • Забивные ж/б сваи 200х200х3000 мм, оголовки с гидроизоляцией
  • Обвязка свай: двойной брус, сибирская лиственница 100х200 мм
  • Приемка работ инженером технического надзора

Стеновой копмлект

  • Рабочий проект КД (конструкции деревянные)
  • Наружные стены, толщина 267 мм: доска сухая строганная 40х145 мм, брусок сухой строганный 45х45 мм, фанера 12 мм, пароизоляция и ветро-влагозащита Технониколь, лента соединительная, утеплитель 50 мм Технониколь
  • Доска фасадная сухая строганная 20х140 мм
  • Внутренние стены, толщина 157 мм: доска сухая строганная 40х145 мм, фанера 12 мм
  • Балки перекрытия – доска сухая строганная
  • Комплектующие и крепеж
  • Леса строительные, лестница межэтажная черновая
  • Доставка стенового комплекта МО до 100 км от МКАД
  • Сборка стенового комплекта
  • Приемка работ инженером технического надзора
  • Рабочий проект КД (конструкции деревянные)
  • Брус клееный 200х185 мм, европейский профиль
  • Столбы – клееный брус, балки перекрытия – доска сухая строганная 45х195 мм
  • Комплектующие и крепеж
  • Леса строительные, лестница межэтажная черновая
  • Доставка стенового комплекта МО до 100 км от МКАД
  • Сборка стенового комплекта
  • Приемка работ инженером технического надзора

Кровля

  • Рабочий проект кровли
  • Стропильная группа – доска сухая строганная 45х195 мм
  • Утепление Rockwool 200 мм
  • Гидроветрозащита Delta
  • Пароизоляционная пленка Delta
  • Комплектующие и крепеж
  • Фальцевая кровля Grand Line
  • Водосточная система Aquasystem
  • Система снегозадержания
  • Свесы кровли – планкен сорт АВ
  • Доставка
  • Монтажные работы
  • Приемка работ инженером технического надзора
  • Рабочий проект кровли
  • Стропильная группа – доска сухая строганная 45х195 мм
  • Утепление Rockwool 200 мм
  • Гидроветрозащита Delta
  • Пароизоляционная пленка Delta
  • Комплектующие и крепеж
  • Фальцевая кровля Grand Line
  • Водосточная система Aquasystem
  • Система снегозадержания
  • Свесы кровли – планкен сорт АВ
  • Доставка
  • Монтажные работы
  • Приемка работ инженером технического надзора

Окна и двери

  • Рабочий проект кровли
  • Стропильная группа – доска сухая строганная 45х195 мм
  • Утепление Rockwool 200 мм
  • Гидроветрозащита Delta
  • Пароизоляционная пленка Delta
  • Комплектующие и крепеж
  • Фальцевая кровля Grand Line
  • Водосточная система Aquasystem
  • Система снегозадержания
  • Свесы кровли – планкен сорт АВ
  • Доставка
  • Монтажные работы
  • Приемка работ инженером технического надзора
  • Обсадная конструкция
  • Профиль Deceuninck Bautec Neo
  • Стеклопакет 40мм(4MF-16-4-12-4(4И))
  • Фурнитура
  • Дверь входная металлическая утепленная
  • Внешние наличники
  • Доставка
  • Монтажные работы
  • Приемка работ инженером технического надзора

Сопровождение строительства

  • Организация проживания рабочих (бытовка), оснащение объекта первичными средствами
  • Подключение бытовки к электричеству
  • Аренда и обслуживание биотуалета
  • Вывоз мусора

Что ещё входит в стоимость

50 лет
гарантии

Персональный
менеджер

Независимый
технадзор

Подробности комплектации

Что не входит в стоимость

Дренаж и отмостка
Внешние монолитные лестницы
Межкомнатные перегородки
Утепление и шумоизоляция перекрытий
Фасадная отделка
Покраска деревянных элементов
Мансардные окна
Инженерные коммуникации

Примеры отделки

Понравился этот проект?
Закажите его презентацию и мы ответим на все интересующие вас вопросы
Made on
Tilda