Заказать обратный звонок
Главный офис
г. Москва, ул. Кузнецкий мост, д. 19, стр. 1, офис 35
Бесплатно по России
+7 (495) 933-83-14
Главная
Проекты
КД 342

КД 342

Площадь по осям
Площадь по осям
Каркасный или Клеёный брус
342 м²
Комнаты
3
Санузла
4
Террасы
2
Базовые планировки
Базовые фасады
342 м²
Площадь по осям
342 м²
Площадь по осям
Хотите изменить планировку?
Это совсем просто! Назначьте встречу с одним из наших архитекторов и на основании ваших идей он создаст индивидуальные планировки.
Планировочное решение строится вокруг просторной общей зоны, раскрытой к центральной террасе и связанной со вторым светом. Гостиная становится композиционным ядром дома: через панорамное остекление она визуально продолжает пространство наружу, формируя единый сценарий жизни — от интерьера к ландшафту.

Слева общественная часть мягко переходит в столовую, ориентированную на открытую зону отдыха. Такое решение усиливает ощущение загородного образа жизни, где приём гостей и семейные ужины естественно перетекают на террасу. Вдоль верхнего пояса этажа компактно сгруппированы вспомогательные помещения: кухня с хозяйственным блоком, кабинет или гостевая комната, гостевой санузел и распределительный холл, обеспечивающий логичную связь со входной зоной и лестницей.

Правое крыло отдано приватному сценарию - здесь расположена спальня с прямым выходом на террасу и собственной ванной комнатой. Такое размещение создаёт ощущение уединения и позволяет использовать открытое пространство как продолжение личной зоны отдыха.

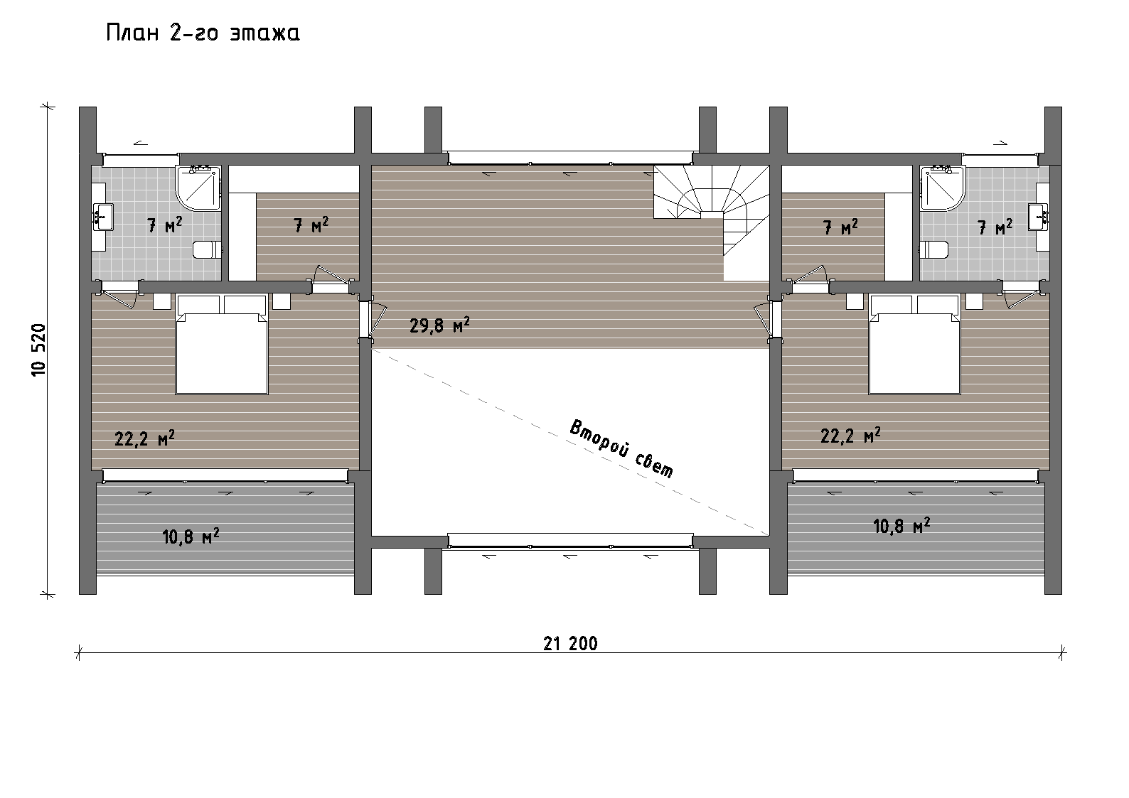
Второй этаж решён симметрично и подчинён идее баланса. По обе стороны расположены равнозначные спальни с собственными гардеробными, санузлами и выходами на балконы, что формирует два автономных мастер-блока. Центральный холл работает как галерея над двусветным пространством, объединяя этаж и наполняя его естественным светом от главного витража. Благодаря этому создаётся ощущение воздушности и архитектурной глубины, характерное для домов с выразительной вертикальной композицией.
Архитектура построена на трёх симметричных фронтонах, объединённых в единую композицию. Центральный объём - с двусветным остеклением «в конёк»: через него читается главный общественный интерьер и формируется парадный вход с широким лестничным маршем. Два боковых фронтона поддерживают ритм фасада и дают приватные зоны с панорамными окнами и балконами. Пластика максимально чистая: светлая штукатурка, спокойная тёмно-серая кровля, графичные чёрные рамы и стеклянные ограждения - за счёт этого дом выглядит современно и “легко”, несмотря на масштаб.

На главном фасаде акцент сделан на прозрачность и глубину: большие витражи на двух уровнях, чёткое деление по горизонтали межэтажным поясом и тёплая подсветка внутренних помещений, которая усиливает эффект «фонаря» в вечерних сценах. Боковые фасады нарочито спокойные, с единичными окнами - это работает как контраст к парадной стеклянной части и повышает приватность. Цоколь визуально отделён более тёмной отделкой, что «сажает» объём на участок и подчёркивает горизонталь террас.
О проекте

Что входит в стоимость

Каркас
Клееный брус

Фундамент

  • Проектная документация
  • Геодезические работы: разбивка осей, нивелировка
  • Забивные ж/б сваи 200х200х3000 мм, оголовки с гидроизоляцией
  • Обвязка свай: двойной брус, сибирская лиственница 100х200 мм
  • Приемка работ инженером технического надзора
  • Проектная документация
  • Геодезические работы: разбивка осей, нивелировка
  • Забивные ж/б сваи 200х200х3000 мм, оголовки с гидроизоляцией
  • Обвязка свай: двойной брус, сибирская лиственница 100х200 мм
  • Приемка работ инженером технического надзора

Стеновой копмлект

  • Рабочий проект КД (конструкции деревянные)
  • Наружные стены, толщина 267 мм: доска сухая строганная 40х145 мм, брусок сухой строганный 45х45 мм, фанера 12 мм, пароизоляция и ветро-влагозащита Технониколь, лента соединительная, утеплитель 50 мм Технониколь
  • Доска фасадная сухая строганная 20х140 мм
  • Внутренние стены, толщина 157 мм: доска сухая строганная 40х145 мм, фанера 12 мм
  • Балки перекрытия – доска сухая строганная
  • Комплектующие и крепеж
  • Леса строительные, лестница межэтажная черновая
  • Доставка стенового комплекта МО до 100 км от МКАД
  • Сборка стенового комплекта
  • Приемка работ инженером технического надзора
  • Рабочий проект КД (конструкции деревянные)
  • Брус клееный 200х185 мм, европейский профиль
  • Столбы – клееный брус, балки перекрытия – доска сухая строганная 45х195 мм
  • Комплектующие и крепеж
  • Леса строительные, лестница межэтажная черновая
  • Доставка стенового комплекта МО до 100 км от МКАД
  • Сборка стенового комплекта
  • Приемка работ инженером технического надзора

Кровля

  • Рабочий проект кровли
  • Стропильная группа – доска сухая строганная 45х195 мм
  • Утепление Rockwool 200 мм
  • Гидроветрозащита Delta
  • Пароизоляционная пленка Delta
  • Комплектующие и крепеж
  • Фальцевая кровля Grand Line
  • Водосточная система Aquasystem
  • Система снегозадержания
  • Свесы кровли – планкен сорт АВ
  • Доставка
  • Монтажные работы
  • Приемка работ инженером технического надзора
  • Рабочий проект кровли
  • Стропильная группа – доска сухая строганная 45х195 мм
  • Утепление Rockwool 200 мм
  • Гидроветрозащита Delta
  • Пароизоляционная пленка Delta
  • Комплектующие и крепеж
  • Фальцевая кровля Grand Line
  • Водосточная система Aquasystem
  • Система снегозадержания
  • Свесы кровли – планкен сорт АВ
  • Доставка
  • Монтажные работы
  • Приемка работ инженером технического надзора

Окна и двери

  • Рабочий проект кровли
  • Стропильная группа – доска сухая строганная 45х195 мм
  • Утепление Rockwool 200 мм
  • Гидроветрозащита Delta
  • Пароизоляционная пленка Delta
  • Комплектующие и крепеж
  • Фальцевая кровля Grand Line
  • Водосточная система Aquasystem
  • Система снегозадержания
  • Свесы кровли – планкен сорт АВ
  • Доставка
  • Монтажные работы
  • Приемка работ инженером технического надзора
  • Обсадная конструкция
  • Профиль Deceuninck Bautec Neo
  • Стеклопакет 40мм(4MF-16-4-12-4(4И))
  • Фурнитура
  • Дверь входная металлическая утепленная
  • Внешние наличники
  • Доставка
  • Монтажные работы
  • Приемка работ инженером технического надзора

Сопровождение строительства

  • Организация проживания рабочих (бытовка), оснащение объекта первичными средствами
  • Подключение бытовки к электричеству
  • Аренда и обслуживание биотуалета
  • Вывоз мусора

Что ещё входит в стоимость

50 лет
гарантии

Персональный
менеджер

Независимый
технадзор

Подробности комплектации

Что не входит в стоимость

Дренаж и отмостка
Внешние монолитные лестницы
Межкомнатные перегородки
Утепление и шумоизоляция перекрытий
Фасадная отделка
Покраска деревянных элементов
Мансардные окна
Инженерные коммуникации

Примеры отделки

Понравился этот проект?
Закажите его презентацию и мы ответим на все интересующие вас вопросы